
適用于科研單位、質檢機構、大專院校等場景
適用于對電工、電子及其它產品、零部件、材料在高低溫、高溫高濕環境下儲存、和使用時的適應性試驗。
|
1.生產廠家:廣東中天儀器股份有限公司 |
|
|
2.主要技術參數 |
|
|
2.1 測試環境條件 |
環境溫度為 25℃、相對濕度≤85%RH、試驗箱內無試樣(除特別說明外) 條 |
|
2.2 設備型號 |
ZOT-40-150 |
|
2.3 設備名稱 |
防爆型恒溫恒濕箱 |
|
2.4 標稱內容積 |
320L |
|
2.5 內箱尺寸 |
W800mm×D500mm×H800mm |
|
2.6 外形尺寸 |
W1100mm×D1400mm×H1900mm (參考,以實際設計為準;) |
|
2.7 溫度范圍 |
-20℃~+150℃ |
|
2.8 升溫速率 |
3℃/min (-20℃~+100,空載非線性) |
|
2.9 降溫速率 |
1℃/min (+100~-40℃,空載非線性) |
|
2.10 溫度波動度 |
≤±0.5℃ |
|
2.11 溫度偏差 |
≤ ±1℃ (空載,溫度穩定后測得) |
|
2.12 溫度均勻度 |
≤2℃ (空載,溫度穩定后測得) |
|
2.13濕度范圍 |
20%RH─98%RH |
|
2.14濕度波動度 |
+2.5%RH(空載,溫度穩定后測得) |
|
2.15濕度均勻度 |
<3%RH(空載,溫度穩定后測得) |
|
2.16運行噪音 |
≤75dB |
|
2.17電源容量 |
19.5kVA |
|
2.18 重量(參考) |
750 kg |
|
3.工作原理 |
|
|
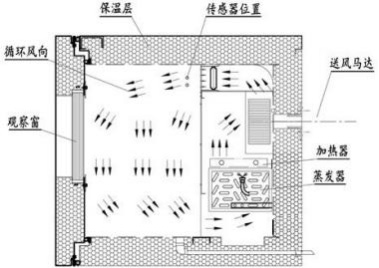
3.1 圖示(參考, 以 實際設計為準) |
|
|
3.2 溫度控制 |
試驗箱運行時, 控制器驅動循環風機運轉, 循環風機帶動葉輪轉動, 葉 輪驅動空氣調節通道內的氣體往試驗空間一側運動, 由此造成空氣調節通道 內葉輪出風口一側的正壓和進風口一側的負壓, 在葉輪出風口一側正壓和進 風口一側負壓的共同作用下, 試驗空間內氣體經回風口擋板通風孔流入空氣 調節通道, 并經加濕器、蒸發器或加熱器的預處理后, 經葉輪驅動并經出風 口擋板通風孔均勻地流入試驗空間, 實現試驗空間溫度場的均勻調節, 后 經由回風口擋板通風孔流入空氣調節通道, 進入下一個氣體循環過程。氣體 循環過程是一個連續的過程。控制器根據試驗箱設定的溫度和通道擋板出風 口處溫度傳感器檢測到的溫度值,需要對制冷量或加熱量進行 PID 調節, |
|
4.試樣說明 |
|
|
4.1 適用范圍 |
適用于對電工、電子及其它產品、零部件、材料在高低溫、高溫高濕環境下儲存、和使用時的適應性試驗。 |
|
4.2 試樣禁止 |
本試驗設備禁止: |
|
4.3 負載條件 |
為使試驗數據真實、有效, 試驗負載應同時滿足以下條件: (詳見“GB/T |
|
|
5170.1-2016 電工電子產品環境試驗設備檢驗方法 第 1 部分:總則”中的“7 檢驗負載”) |
|
5.結構特征 |
|
|
5.1 保溫圍護結構 |
(1) 外壁材料: 優質冷軋鋼板,厚度 1.5mm,表面噴塑烤漆(可根據客 戶提供色板); |
|
5.2 空氣調節通道 |
風機、加熱器、加濕器 干燒防止器、 蒸發器、排水裝置、溫濕度傳感器 |
|
5.3 標準配置 |
(1) 引線孔: Φ150mm ,4個(帶硅膠塞和蓋;左、右側各 2個); |
|
5.4 門 |
(1) 雙開鉸鏈門(防爆壓桿式門鎖); |
|
5.5 觀察窗 |
(1)大門上設計多層真空鍍膜鋼化玻璃觀察窗 |
|
5.6 循環風機 |
不銹鋼離心風機 |
|
5.8 機械室 |
制冷機組、接水盤、排水孔。 |
|
5.9 加熱加濕器 |
(1) 不銹鋼電熱管,加水系統自動加水。 |
|
5.10 電源線孔及排 |
位于箱體背面。 |
|
6.制冷系統 |
|
|
6.1 工作方式 |
風冷 機械壓縮二元復疊制冷 |
|
6.2 制冷壓縮機 |
日本松下渦旋壓縮機2臺 單臺功率7KW |
|
6.3 冷凝器 |
風冷型, 翅片管式換熱器 |
|
6.4 蒸發器 |
翅片管式換熱器 |
|
6.5 冷凝蒸發器 |
板式換熱器 |
|
6.6 節流裝置 |
熱力膨脹閥 |
|
6.7 制冷機組控制 |
控制系統根據試驗條件自動調節制冷機組的運行工況。 |
|
6.8 制冷劑 |
R404A、R23 (臭氧耗損指數皆為 0)。 |
|
7.電氣控制系統 昆侖通泰溫濕度顯示屏+西門子PCL |
|
|
7.1 數據記錄功能 |
具有帶電池保護的 SRAM,可保存設備的設定值、出力值、采樣值及采樣 |
|
7.2 試驗數據采集 |
(1)控制自帶存儲硬盤,采樣周期可以在顯示屏上設置,如果采樣 |
|
7.4 顯示器 |
7 英寸, 640×480 點陣,彩色 LCD 顯示器。 |
|
7.5 運轉方式 |
定值運轉 、程序運轉。 |
|
7.6 設定方式 |
中/英文菜單,觸摸屏方式輸入。 |
|
7.7 程序容量 |
(1)定值運轉時間設定可達 9999 h 59 m (也可設定為持續運轉無 時間設限); |
|
7.8 顯示分辨率 |
溫度: 0.01℃;時間: 0. 1min。 |
|
7.9 溫濕度傳感器 |
Pt100 鉑電阻。 |
|
7.10 通訊功能 |
(1) 可連接計算機顯示曲線、數據采集; |
|
7.11 軟件功能 |
開機自檢功能、日歷定時功能(自動啟動和自動停止運行)、溫度上下限預 |
|
7.12 控制開關 |
(1)緊急停止開關; |
|
8.安全措施 |
|
|
8.1 高溫保護噴淋 |
采用溫度控制系統高溫自動噴淋。現場溫度設置指導。 |
|
8.2 加熱器、加濕器 |
采用不銹鋼電熱管。 |
|
8.3 防爆泄壓口 |
(1) 設備頂部設置防爆泄壓口 1 套(300mm×300mm),用于箱內在爆炸時 快速排出高壓氣體; |
|
8.34接地 |
設備內外箱體可靠接地,接地電阻小于 4Ω。 |
|
8.5 防爆鏈條 |
箱體拼接處具有較好的強度和剛性, 門結構、門鎖加強; 箱體大門左右兩側 |
|
8.56觀察窗 |
(1)大門上設計多層真空鍍膜鋼化玻璃觀察窗(W300mm×H400mm); |
|
8.7其它 |
(1) 配有緊急停止按鈕。 |
|
9.安全保護裝置 |
|
|
9.1 制冷系統 |
(1)壓縮機超壓保護; (2)壓縮機過熱保護; |
|
9.2 試驗區 |
(1)箱內外氣壓平衡裝置; |
|
9.3 其它 |
(1)電源缺相及相序錯誤保護; |
適用于對電工、電子及其它產品、零部件、材料在高低溫、高溫高濕環境下儲存、和使用時的適應性試驗。
建立起遍布亞、美、歐三大洲的研發網絡
R & D Technology
公司總部占地面積20000多平方,建筑面積15000多平方,廠房面積8600平方。
遍布亞、美、歐三大洲的研發網絡,建立健全創新機制及知識產權管理平臺
Non-standard customization
根據客戶的行業進行專門定制
客戶可提出具體設備需求性能來進行非標定制
設備適用于科研單位、質檢機構、大專院校等等
Qualification
產品符合ISO、AATCC、ASTM、DIN、EN、GB、BS、JIS、ANSI、UL、TAPPI、IEC、VDE等權威標準,質量保證。
2020年底通過了質量、服務、誠信AAA企業、中國自主創新企業、廣東省創新、創優質量品牌雙承諾單位、中國精密儀器制造行業快速成長型企業、廣東省品牌認證。
Intimate service
堅持以“誠信經營”為本,以“品質優良”為首
完善的售前售后服務體系,專業的技術適用
24小時響應,當天下單,專人定時定點跟單指導
在線提需求,3小時內技術人員提供解決方案
為客戶解決檢測儀器定制難題
